Casa Modelo 01 - En Chincha
Pre-venta de casa en etapa de desarrollo y planos. La casa cuenta con dos niveles más una azotea.
El lote es de 20 metros x 25 metros, dando un área total del 500m2, y el área contraída sumando todos los niveles de 635 m2.
Llama o escríbenos y saca tu cita para una visitar nuestras oficinas y darte más detalles.
+51 922 693 329


Casa modelo 01
Linda casa en esquina de 635m2 área construida, en un lote de 500m2 - 02 niveles + azotea
S/ 1,945,600.00 soles
------------






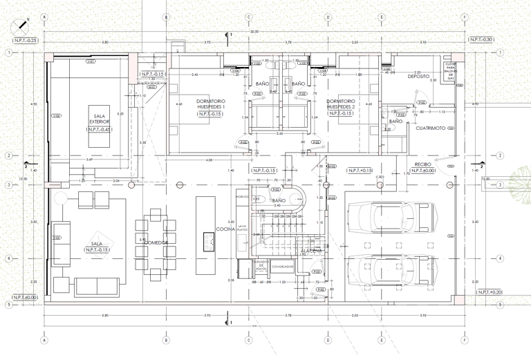
La casa, constará de:
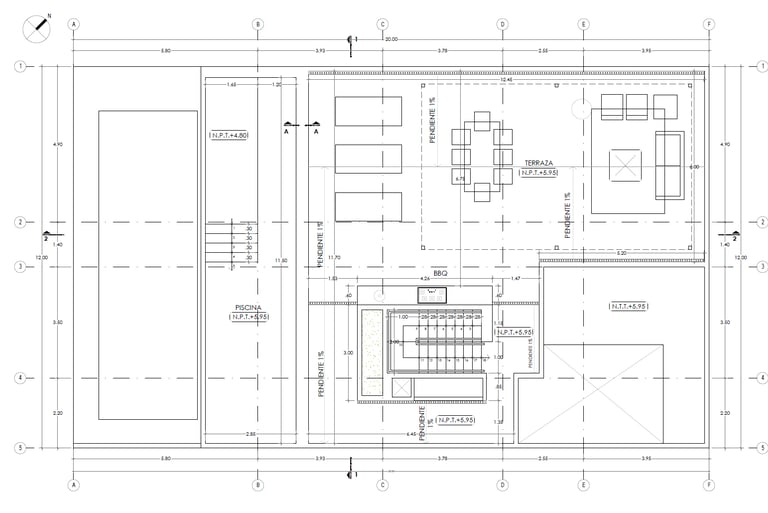
Primer Nivel
- 1 hall de ingreso
- 1 sala exterior
- 1 sala interior
- 1 comedor
- 1 cocina abierta
- 1 dormitorio de huéspedes N° 1 con baño propio
- 1 dormitorio de huéspedes N° 2 con baño propio
- 1 baño para visitas
- 1 cochera para dos autos y una cuatrimoto
- 1 baño en la cochera
- 1 depósito en la cochera




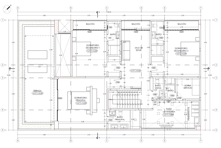
Segundo Nivel
- 1 dormitorio principal con baño propio + balcón
- 1 dormitorio secundario N° 1 con baño propio + balcón
- 1 dormitorio secundario N° 2 con baño propio + balcón
- 1 terraza privada y amplia para el dormitorio principal
- 1 sala de estar
- 1 baño de visitas
- 1 área y patio de lavandería
- 1 dormitorio de servicio con baño propio
Azotea
- 1 terraza sala comedor
- 1 zona de asados BBQ en área de piscina
- 1 piscina




Balneario Las Totoritas
Altura Km 188 Panamericana Sur
Grocio Prado - Chincha - Ica
Referencias:
Frente a la Playa Las Totoritas
A 01 kilometro del peaje de Chincha
Ubicación
del Condominio
CONTACTO:
Tu inmobiliaria confiable en el sur
info@gloriadelsur.com
+51 922 693 329
Copyright © Gloria del Sur 2025. Todos los derechos reservados.
Gloria del Sur SAC - RUC: 20609631831
SÍGUENOS EN:
CATEGORIAS:
Oficina:
Jr. Libertad Mz. 12 Lt. 10 - Lurín
Proyecto:
Balneario Las Totoritas
Altura Km 188 Panamericana Sur
Grocio Prado - Chincha - Ica

